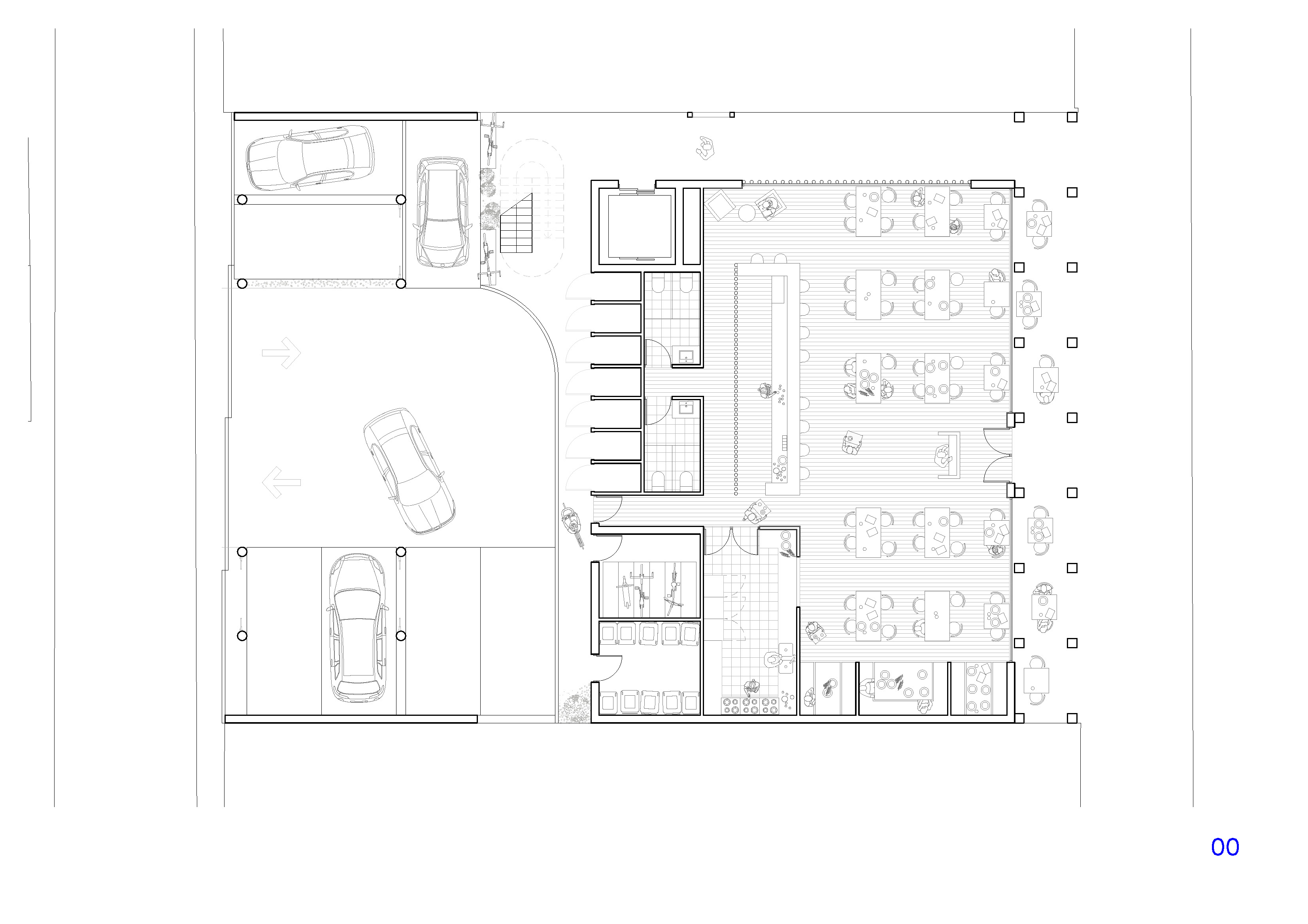
Our proposal for the Canvas Factory Competition puts a forward a shared collective space, an outdoor Living Room, as the heart of the project.
This courtyard engages with all seven of the apartments, forming a central courtyard for all to use. The project argues for solidarity and conviviality – that a housing complex is it at highest value when people share space, as opposed to the size or finish of each individual apartment. This shared moment happens in the Outdoor Living Room – a garden flanked by two distinct buildings housing seven apartments of varying size and mix.
Designed in Collaboration with MHNDU
Project Team:
Architect in Association: MHNDU
Imagery: Freshimages






Next project
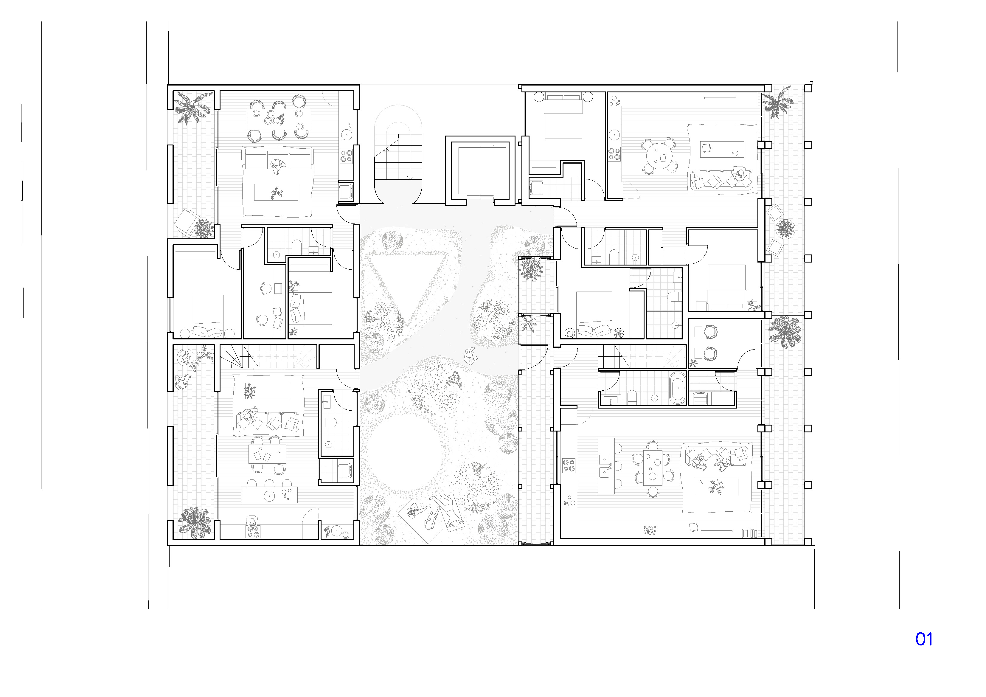
Our proposal for the Canvas Factory Competition puts a forward a shared collective space, an outdoor Living Room, as the heart of the project.
This courtyard engages with all seven of the apartments, forming a central courtyard for all to use. The project argues for solidarity and conviviality – that a housing complex is it at highest value when people share space, as opposed to the size or finish of each individual apartment. This shared moment happens in the Outdoor Living Room – a garden flanked by two distinct buildings housing seven apartments of varying size and mix.
Designed in Collaboration with MHNDU
Project Team:
Architect in Association: MHNDU
Imagery: Freshimages



Next project
