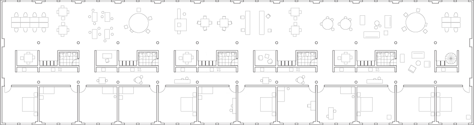
We live here, we work here
Location | Gadigal Land |
Year | 2019 |
Project Category | Urbanism |
Description | Proposal for the transformation of existing office buildings to housing |









Next project
We live here, we work here
Location | Gadigal Land |
Year | 2019 |
Project Category | Urbanism |
Description | Proposal for the transformation of existing office buildings to housing |









Next project
