Equal Parts
Location | Los Angeles |
Year | 2021 |
Project Category | Urbanism |
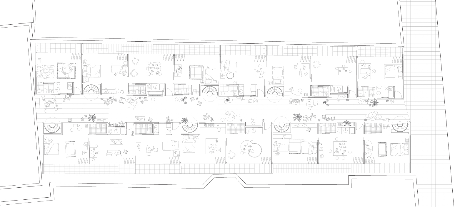
Description | Transitional, or “temporary” housing often provides little more than basic shelter to house a human. Transitional housing should (and rarely does so) consider the intricacies of those in which it homes, and be addressed as more than just efficiencies and necessities. What if we were to think about temporary housing as strong and solid, rather than fragile? Where every person housed has a capacity of self-sufficiency and privacy, a space of their own. These spaces are not just for basic needs, but for the individual to carry out every aspect of their life in meaningful and dignified ways.
|










Next project
Equal Parts
Location | Los Angeles |
Year | 2021 |
Project Category | Urbanism |
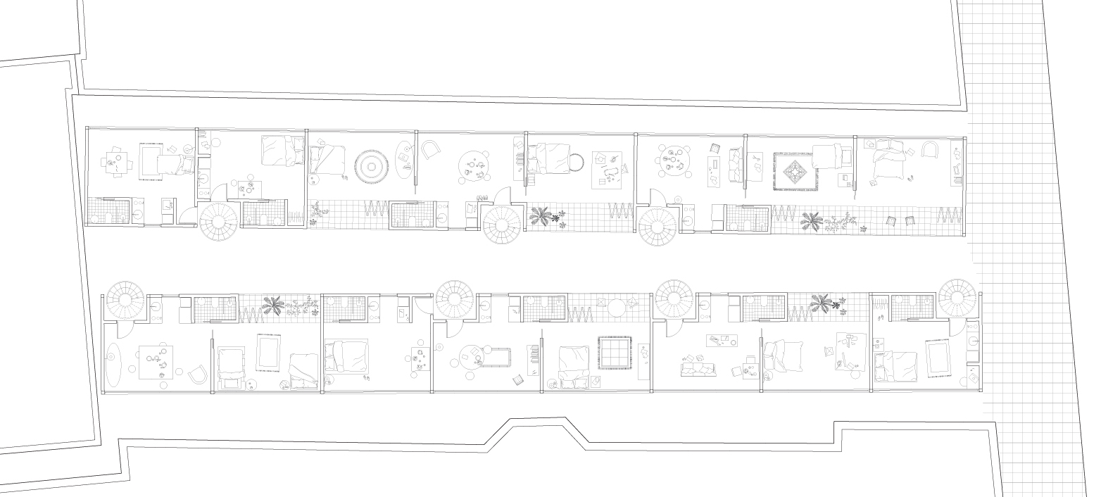
Description | Transitional, or “temporary” housing often provides little more than basic shelter to house a human. Transitional housing should (and rarely does so) consider the intricacies of those in which it homes, and be addressed as more than just efficiencies and necessities. What if we were to think about temporary housing as strong and solid, rather than fragile? Where every person housed has a capacity of self-sufficiency and privacy, a space of their own. These spaces are not just for basic needs, but for the individual to carry out every aspect of their life in meaningful and dignified ways.
|





Next project
